Ferieleilighet - 2 personer - Promenade - 24217 - Schönberger Strand

2 personer

Oversikt

Emne nr.: 540-1698-1564
7 netter
Fra NOK 7 882,-
Boligareal 52 m²
Soverom 1
Baderom 1
Internet
Ikke-røyker
Husdyr
  • Tilbud miniferie Nei
  • Badstue Ja
  • Vannutsikt Ja
  • Vaskemaskin Ja
  • Oppvaskmaskin Ja

Beskrivelse

Vi beklager, men beskrivelsen er ikke tilgjengelig på Norsk. Se beskrivelsen i Tysk nedenfor, eller se den maskinoversatte teksten i Norsk.
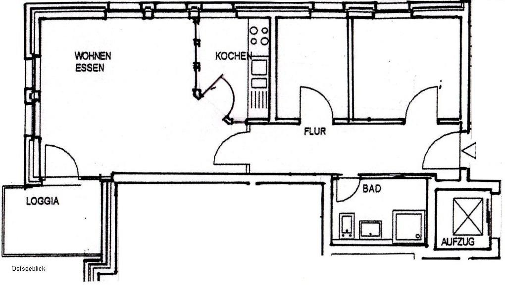
Ferienwohnung/App. für 2 Gäste mit 52m² in Schönberger Strand (1698) (2. Stock)

Das 52 m² große Appartement mit unverbauten, wunderschönen Blick auf die Ostsee ist nur 50 Meter vom Strand entfernt.

Es verfügt über insgesamt drei Zimmer. Ein Wohn-/Esszimmer mit abgetrennter Küche, ein kleines Schlafzimmer (7,3 m²) mit einem Doppelbett (160 x 200 cm), sowie ein kleines Kinderzimmer (Kind bis 6 Jahre) mit einem Schlafsessel und ein Badezimmer (4,7 m²) mit Dusche/WC. Im Gemeinschaftskeller befindet sich eine Sauna, diese ist mit einem Münzautomat ausgerüstet.

Genießen Sie das Meeresrauschen vom Balkon aus, lassen Sie die Seele bei einem Spaziergang baumeln und vergessen Sie den Alltag. Der Schönberger Strand bietet vielfältige Möglichkeiten: Ob baden, segeln, wandern, Rad fahren, angeln oder Wasserski laufen. Herausragend sind die langen, feinen Sandstrände und das idyllische Hinterland. Neben den kulinarischen Highlights der Region ist auch das kulturelle Programm sehenswert. Besuchen Sie die vielen Museen und Konzerte, lernen Sie die antiken Schätze kennen und wandeln Sie auf den Spuren der Vergangenheit. Stechen Sie in See und erleben Sie die Ostsee bei einem Fördetörn oder genießen Sie Ihren Platz am Meer in einem Strandkorb. Im rund vier Kilometer entfernten Hauptort Schönberg finden Sie darüber hinaus viele Einkaufsmöglichkeiten. Ebenso lohnt es sich in der rund 25 Kilometer entfernten Landeshauptstadt Kiel auf Entdeckungsreise zu gehen. Dort können Sie durch Shoppingcenter bummeln, am Yachthafen spazieren und die imposanten Kreuzfahrtschiffe bestaunen.

Wir heißen Sie bereits jetzt herzlich willkommen und wünschen Ihnen eine schöne Zeit!
In den genannten Preisen sind die Nebenkosten (Strom, Wasser, Heizung) inbegriffen.

Die Erstausstattung von Bettwäsche und Handtüchern ist pro Person und Aufenthalt inklusive, ebenso die Waschmaschinennutzung.
Eine Sauna im Gemeinschaftskeller ist mit einem Münzautomat ausgerüstet.

Våre gjesteanmeldelser Eksterne anmeldelser

4,0
Basert på 1 vurdering
Anmeldelse fra 04.01.2025
5
(0)
4
(1)
3
(0)
2
(0)
1
(0)
Kommentarer
Ingen vurderinger har kommentarer til norsk
1 vurdering har en kommentar på et annet språk.
3,7
3 eksterne anmeldelser
2,6
august 2025
Fasiliteter:
2
Beliggenhet:
5
Verdi for pengene:
4
Rengjøring:
1
Tjenester på stedet:
1
Generelt:
Die Dusche muss dringend erneuert werden. Das Schlafzimmer ist nichts für etwas beleibtere Personen.Für unseren Geschmack steht zuviel Nippes herum. .
4,2
august 2025
Fasiliteter:
4
Beliggenhet:
5
Verdi for pengene:
4
Rengjøring:
4
Tjenester på stedet:
4
4,4
maj 2025
Fasiliteter:
4
Beliggenhet:
5
Verdi for pengene:
4
Rengjøring:
5
Tjenester på stedet:
4

Fasiliteter

  • Avstand

    • Barnas Eventyrland Wendtorf
      12 km
    • Dyrehage Gettorf
      46 km
    • Fehmarn Island
      73 km
    • Friluftsmuseum Molfsee
      32 km
    • Kiel jernbanestasjon
      27 km
    • Kiel sentrum (shopping)
      27 km
    • Kiel-kanalen (Holtenau)
      38 km
    • Naval Memorial Laboe
      16 km
    • Svømmebasseng Preetz
      27 km
    • Teknisk museum U 995 Laboe
      16 km
  • Basic

    • Kjøkken
      1
    • Stue
      1
    • Størrelse
      52 m²
  • Catering og shopping

    • Shopping opp til 500 m
  • Diverse

    • Ostseeblick
    • Strandavstand opptil 500 m
  • Generelt utstyr

    • Heis
    • Ikke-røykere
    • Kjæledyr forbudt
    • Vaskemaskin inkludert
  • Kjøkkenutstyr

    • 4 kokeplater
    • Brødrister
    • Fryseboks
    • Kaffemaskin
    • Kjøleskap
    • Mikrobølgeovn
    • Oppvaskmaskin
    • Ovn
    • Separat kjøkken
    • Varmtvannsbereder
  • Service

    • Badstue er avgiftsbelagt
    • Kjøkkenhåndklær inkl.
    • Sengetøy inkl.
  • Stue/soverom

    • Dobbeltsenger
    • Dusj
    • DVD- eller Bluray-spiller
    • Hårføner
    • Internett/W-LAN
    • Madrassbredde < 90 cm
    • Stereo med CD
  • Tjenester

    • Håndklær inkl.
  • Utendørs anlegg

    • Balkong / Loggia
    • Hage og utemøbler
    • Privat parkeringsplass
  • Utenfor

    • Bod

Priser og kalender

Kalender

Ankomst
Forrige måned Neste måned
   Sjekk tilgjengeligheten på den valgte datoen
Tilgjengelig
Opptatt
   Ankomst mulig
Varighet

Pris

Periode
Ankomst
Avreise
Varighet
1 uke
Personer
Opp til 2 personer

Merk

Ankomst er ikke valgt.
Kontrakts- og leievilkår