Feriesenter - 6 personer - XL- Reetdachhaus, Urlaub mit Hund, Ferien für 11 Personen - 18230 - Rerik
Alternative emner
I nærheten (243)6 personer
inkludert 1 barn (0-3 år)
Oversikt
Emne nr.: 530-654680
7 netter
Fra
NOK 16 744,-
5
voksne
1
barn
- Tilbud miniferie Ja
- Avstand innkjøp 1 500 m
- Parabol/Kabel-TV Ja
- Feriehuse for funksjonshemmede Ja
- Inngjerdet område Ja
- Vaskemaskin Ja
- Tørketrommel Ja
- Oppvaskmaskin Ja
Beskrivelse
Vi beklager, men beskrivelsen er ikke tilgjengelig på Norsk. Se beskrivelsen i Tysk nedenfor, eller se den maskinoversatte teksten i Norsk.
L7 Ferienhaus Strandhafer Ostseebad Rerik - XL, 4-Raum-Ferienhaus (max. 5 Personen) - rechts
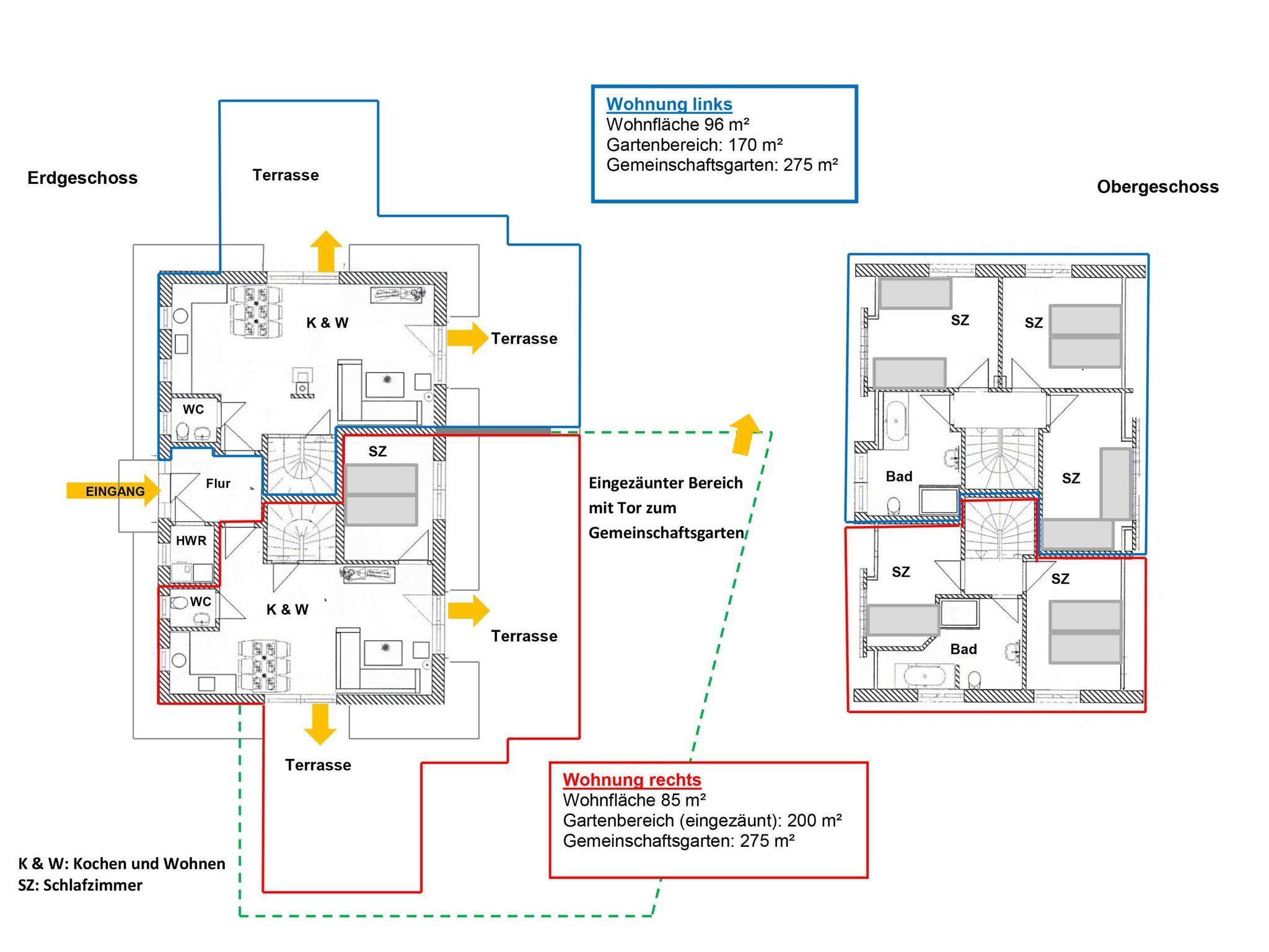
XL Reetdach-Ferienhaus im Ferienpark Ostseebad Rerik mit 2 Doppelhaushälften, die auch zusammen für XL Ostseeurlaub gebucht werden können. Die Doppelhaushälfte links ist für 6 Personen geeignet, die Doppelhaushälfte rechts für 5 Personen = insgesamt gibt es bei XL Buchung genügend Platz für 11 Personen.
Gemeinschaftlicher Eingang, gemeinschaftliche Nutzung von Waschmaschine und Trockner.
Insgesamt finden Sie hier 6 separate Schlafzimmer (3x je 1 Doppelbett + 2x je 2 Einzelbetten + 1x 1 Einzelbett). In der linken Haushälfte befindet sich ein Kamin, wo man einen erlebnisreichen Tag gemütlich ausklingen lassen kann.
Terrassen mit Gartenmöbeln (Sitz-/ Essgruppe und Lounge Garnitur) sowie abschließbarer Schuppen mit Ladestation für E-Bikes für alle Gäste nutzbar.
Kinderfreundliche Ausstattung:
Babybett (Reisebett ohne Bettwäsche), Hochstuhl, kindersichere Steckdosen, Treppenschutzgitter, großer, eingezäunter Garten. Zusätzlich gibt es einen Gemeinschaftsgarten mit Strandkorb und Sandkasten, der bitte tierfrei bleibt.
Ostseeurlaub mit Hund:
Im Ferienhaus sind Haustiere willkommen. Je Haus bietet ein eingezäunter Garten Schutz. Ein zusätzlicher Gemeinschaftsgarten für Kinder ist eingezäunt und bleibt tierfrei! Gebühr je Haustier und Tag 10 EUR. Ihr Hund darf nicht unbeaufsichtigt im Ferienhaus bleiben. Gassi- und Auslaufwege starten direkt am Haus Richtung Wald, Feld oder Strand.
Ausstattung des Ferienhauses:
Waschmaschine, Trockner, WLAN, Elektro- Tisch- Grill, Parkplatz. Smart-TV´s für Streamingdienste Sky, Netflix & Amazon Prime u.a.
Reetdach-/ Schilfdachhäuser:
Da es sich in dem Wohngebiet um Häuser mit Reet handelt, ist das Abfeuern von Feuerwerk und Silvesterraketen verboten. Rauchen im Haus nicht gestattet.
Extra- Service auf Wunsch (Gebühr):
Wäschepaket & Handtücher gg. Gebühr buchbar - ohne Kinderbettwäsche - bei Anreise NICHT bezogen
Gemeinschaftlicher Eingang, gemeinschaftliche Nutzung von Waschmaschine und Trockner.
Insgesamt finden Sie hier 6 separate Schlafzimmer (3x je 1 Doppelbett + 2x je 2 Einzelbetten + 1x 1 Einzelbett). In der linken Haushälfte befindet sich ein Kamin, wo man einen erlebnisreichen Tag gemütlich ausklingen lassen kann.
Terrassen mit Gartenmöbeln (Sitz-/ Essgruppe und Lounge Garnitur) sowie abschließbarer Schuppen mit Ladestation für E-Bikes für alle Gäste nutzbar.
Kinderfreundliche Ausstattung:
Babybett (Reisebett ohne Bettwäsche), Hochstuhl, kindersichere Steckdosen, Treppenschutzgitter, großer, eingezäunter Garten. Zusätzlich gibt es einen Gemeinschaftsgarten mit Strandkorb und Sandkasten, der bitte tierfrei bleibt.
Ostseeurlaub mit Hund:
Im Ferienhaus sind Haustiere willkommen. Je Haus bietet ein eingezäunter Garten Schutz. Ein zusätzlicher Gemeinschaftsgarten für Kinder ist eingezäunt und bleibt tierfrei! Gebühr je Haustier und Tag 10 EUR. Ihr Hund darf nicht unbeaufsichtigt im Ferienhaus bleiben. Gassi- und Auslaufwege starten direkt am Haus Richtung Wald, Feld oder Strand.
Ausstattung des Ferienhauses:
Waschmaschine, Trockner, WLAN, Elektro- Tisch- Grill, Parkplatz. Smart-TV´s für Streamingdienste Sky, Netflix & Amazon Prime u.a.
Reetdach-/ Schilfdachhäuser:
Da es sich in dem Wohngebiet um Häuser mit Reet handelt, ist das Abfeuern von Feuerwerk und Silvesterraketen verboten. Rauchen im Haus nicht gestattet.
Extra- Service auf Wunsch (Gebühr):
Wäschepaket & Handtücher gg. Gebühr buchbar - ohne Kinderbettwäsche - bei Anreise NICHT bezogen
Reetdach-Ferienhaus im Ostseebad Rerik mit 2 Doppelhaushälften. Diese rechte Doppelhaushälfte rechts (85 m²) ist für 5 Personen + 1 Baby geeignet.
Im Erdgeschoss großzügiger Wohn-/ Essbereich mit Esstisch und integrierter Küche mit Backofen, 4-Platten-Herd, Mikrowelle, Geschirrspüler, Kühl-/ Gefrierkombination, Kaffeemaschine ausgestattet. Im EG ein Schlafraum mit 1 Doppelbett (1,80 x 2 m). Gäste-WC.
Im Obergeschoss zwei weitere Schlafzimmer. Davon ist ein Schlafraum mit Doppelbett (1,80 x 2 m) & TV ausgestattet. Im anderen Schlafzimmern steht ein Einzelbett. Das geräumige Bad verfügt über Dusche/ WC sowie Badewanne.
Eigener Garten (200 m²) plus Garten zur gemeinschaftliche Nutzung (275 m²), Terrassen mit Gartenmöbeln (Sitz-/ Essgruppe und Lounge Garnitur) sowie der abschließbare Gemeinschaftsschuppen mit Ladestation für E-Bikes sind für alle Gäste nutzbar. Elektro-Tisch-Grill vorhanden.
Gemeinschaftlicher Eingang, gemeinschaftliche Nutzung von Waschmaschine und Trockner.
Kinderfreundliche Ausstattung:
Babybett (Reisebett - ohne Kinderbettwäsche!, Hochstuhl, kindersichere Steckdosen, Treppenschutzgitter, großer, eingezäunter Garten für jede Wohnung separat vorhanden. Zusätzlich gibt es einen Gemeinschaftsgarten (mit Strandkorb und Sandkasten) in dem keine Haustiere zugelassen sind.
Ostseeurlaub mit Hund:
Im Ferienhaus sind Haustiere willkommen. Je Haus bietet eingezäunter Garten. Ein zusätzlicher Gemeinschaftsgarten für Kinder ist eingezäunt und bleibt allerdings tierfrei! Gebühr je Haustier und Tag 10 EUR. Ihr Hund darf nicht unbeaufsichtigt im Ferienhaus bleiben.
Ausstattung des Ferienhauses:
Waschmaschine, Trockner, WLAN, Parkplatz.
Grillen, Feuer und Silvester:
Da es sich in dem Wohngebiet um Häuser mit Reet handelt, ist das Abfeuern von Feuerwerk und Silvesterraketen verboten! Das Rauchen ist im Ferienhaus nicht gestattet.
Extra- Service auf Wunsch (Gebühr):
Wäschepaket (Bettwäsche = bei Anreise NICHT bezogen, Handtücher & Geschirrtuch). Kinderbettwäsche bitte selbst mitbringen.
Im Erdgeschoss großzügiger Wohn-/ Essbereich mit Esstisch und integrierter Küche mit Backofen, 4-Platten-Herd, Mikrowelle, Geschirrspüler, Kühl-/ Gefrierkombination, Kaffeemaschine ausgestattet. Im EG ein Schlafraum mit 1 Doppelbett (1,80 x 2 m). Gäste-WC.
Im Obergeschoss zwei weitere Schlafzimmer. Davon ist ein Schlafraum mit Doppelbett (1,80 x 2 m) & TV ausgestattet. Im anderen Schlafzimmern steht ein Einzelbett. Das geräumige Bad verfügt über Dusche/ WC sowie Badewanne.
Eigener Garten (200 m²) plus Garten zur gemeinschaftliche Nutzung (275 m²), Terrassen mit Gartenmöbeln (Sitz-/ Essgruppe und Lounge Garnitur) sowie der abschließbare Gemeinschaftsschuppen mit Ladestation für E-Bikes sind für alle Gäste nutzbar. Elektro-Tisch-Grill vorhanden.
Gemeinschaftlicher Eingang, gemeinschaftliche Nutzung von Waschmaschine und Trockner.
Kinderfreundliche Ausstattung:
Babybett (Reisebett - ohne Kinderbettwäsche!, Hochstuhl, kindersichere Steckdosen, Treppenschutzgitter, großer, eingezäunter Garten für jede Wohnung separat vorhanden. Zusätzlich gibt es einen Gemeinschaftsgarten (mit Strandkorb und Sandkasten) in dem keine Haustiere zugelassen sind.
Ostseeurlaub mit Hund:
Im Ferienhaus sind Haustiere willkommen. Je Haus bietet eingezäunter Garten. Ein zusätzlicher Gemeinschaftsgarten für Kinder ist eingezäunt und bleibt allerdings tierfrei! Gebühr je Haustier und Tag 10 EUR. Ihr Hund darf nicht unbeaufsichtigt im Ferienhaus bleiben.
Ausstattung des Ferienhauses:
Waschmaschine, Trockner, WLAN, Parkplatz.
Grillen, Feuer und Silvester:
Da es sich in dem Wohngebiet um Häuser mit Reet handelt, ist das Abfeuern von Feuerwerk und Silvesterraketen verboten! Das Rauchen ist im Ferienhaus nicht gestattet.
Extra- Service auf Wunsch (Gebühr):
Wäschepaket (Bettwäsche = bei Anreise NICHT bezogen, Handtücher & Geschirrtuch). Kinderbettwäsche bitte selbst mitbringen.
Vor Ort
Ortsübliche Kurtaxe plus Schlüsselkaution 25 EUR bar bei Anreise. Die Schlüssel-Kaution wird bei Anreise bar hinterlegt und bei Abreise bar ausgezahlt. Keine ec- oder Kreditkartenzahlung.
Ortsübliche Kurtaxe plus Schlüsselkaution 25 EUR bar bei Anreise. Die Schlüssel-Kaution wird bei Anreise bar hinterlegt und bei Abreise bar ausgezahlt. Keine ec- oder Kreditkartenzahlung.
Våre gjesteanmeldelser Eksterne anmeldelser
Fasiliteter
-
Aktivitetsfasiliteter
-
Hesteridning
-
Minigolf
-
Surfing
-
Sykkelutleie
-
Vognturer
-
Å sykle
-
-
Avstander
-
Til badeplassen/vannmassen1,5 km
-
Til bakeriet1,5 km
-
Til bussholdeplassen1,5 km
-
Til legen1,5 km
-
Til minibanken/banken1,5 km
-
Til motorveien25 km
-
Til restauranten1,5 km
-
Til sentrum1,5 km
-
Til stranden1,5 km
-
Til supermarkedet1,5 km
-
Til sykehus/klinikk22 km
-
Til sykkelstien500 m
-
Til togstasjonen12 km
-
Til turistinformasjonen1,5 km
-
Til turstien500 m
-
-
Barnefasiliteter
-
Familievennlig
-
Småbarnsutstyr
-
-
Grunnleggende fasiliteter
-
Byggeår2018
-
Størrelse85 m²
-
År renovert2020
-
-
Mat fasiliteter
-
Brødservice
-
Frokost mulig
-
-
Omliggende fasiliteter
-
Hage til bruk
-
Inngjerdet tomt
-
PARKERING
-
Sittegruppe i hagen
-
Surfeskole
-
Sykkelbod
-
-
Overnatting Fasiliteter
-
Avanserte rengjøringsmetoder i bruk
-
BBQ anlegg
-
Bevisst unngåelse av avfall
-
El-sykkel ladestasjon
-
Handikapvennlig
-
Internett i fellesområdet
-
Røykfritt hus
-
Sykkelrom låsbart
-
Sykkelvennlig
-
Tilgjengelighet
-
Turvennlig
-
Vaskeri
-
Økologiske rengjøringsprodukter
-
-
ServiceFacilities
-
Badekar
-
Bedding
-
Brødrister
-
Brødservice
-
Dobbel seng
-
Dusj
-
Dusj/toalett
-
Dyr på forespørsel
-
Dårlig/WC
-
Enkeltseng
-
Flere soverom
-
Frokostservering
-
Gjestetoalett
-
Husdyr tillatt eller på forespørsel
-
Høy stol
-
Håndklær
-
Ikke-røykere
-
Insektsmiddel/gasbind
-
Internett - WiFi
-
Kabel / lør
-
Kaffemaskin
-
Kjøkken (åpent)
-
Kjøleskap
-
Mikrobølgeovn
-
Mulighet for frysing
-
OPPVARMING
-
Oppvaskmaskin
-
Ovn
-
Pute
-
Reiseseng/seng
-
Separate senger
-
Smart TV
-
Strømmetjenester
-
Terrasse
-
Toalettpapir
-
TV
-
TV - flatskjerm
-
Tørketrommel
-
Varmtvannsbereder
-
Vaskemaskin
-
Vaskemidler
-
Kort ferie
Det er mulighet for miniferie hele året.
Priser og kalender
Kalender
Varighet
Personer
Pris
Periode
- Ankomst
- Avreise
- Varighet
- 1 uke
Personer
Ingen personer angitt
Merk
Ankomst er ikke valgt.
Der er ikke valgt personer.