Ferieleilighet - 4 personer - Neuenhammer - 92697 - Georgenberg
Alternative emner
I nærheten (2)4 personer
Oversikt
Emne nr.: 530-647929
7 netter
Fra
NOK 11 577,-
4
personer
- Tilbud miniferie Ja
- Oppvaskmaskin Ja
Beskrivelse
Vi beklager, men beskrivelsen er ikke tilgjengelig på Norsk. Se beskrivelsen i Tysk nedenfor, eller se den maskinoversatte teksten i Norsk.
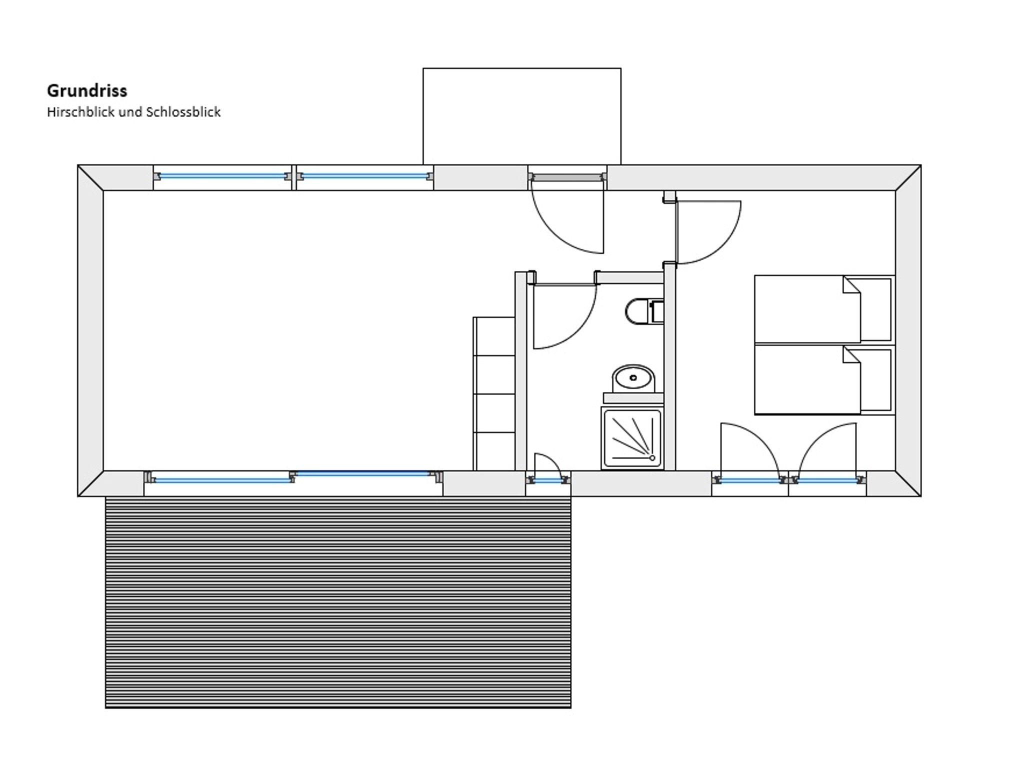
Modul Häuser Maurer, Ferienwohnung zum Hirschblick
Lage & Umgebung
Erleben Sie Ihren Urlaub in unseren neu erbauten Modulhäusern (Tiny) in Neuenhammer. Im Herzen des Zottbachtals im Oberpfälzer Wald und direkt am Glasschleifer Wanderweg gelegen.
Räumlichkeiten & Ausstattung
46 qm barrierefreie Ferienwohnung mit Terrasse und großer Wiese.
Räumlichkeiten:
1 großes, helles Schlafzimmer mit einem Doppelbett und großzügigem Schrank. Schlafcouch für weitere 2 Personen im Wohnbereich. Bettwäsche wird gestellt. Auf Anfrage stellen wir auch ein Babyreisebett.
Großzügige Wohn-Ess-Küche mit großem Esstisch für 4 Personen, Zugang zur Terrasse mit Blick auf unser Hirschgehege. Kühlschrank, Spülmaschine, Ceranfeld mit 2 Kochstellen, Filterkaffeemaschine, Wasserkocher, Toaster und reichhaltiges Geschirr. Geschirrtücher werden gestellt.
Terrasse ca. 18 qm zum Relaxen. Gartentisch und Stühle sind vorhanden.
Bad mit großzügiger barrierefreier Dusche, Waschbecken und WC. 1 Satz Handtücher wird gestellt.
Ausstattung
Zentrale Flächenheizung über Wärmepumpe
Internetzugang über WLAN (kostenfrei)
Garderobe mit Schuhbank
Unterstellmöglichkeit für Fahrzeuge
Ski- und Schlitten-Unterbringungsraum
Bei Bedarf Kinderhochstuhl und Wäscheständer
Auf Anfrage können Sie in unserer Gaststätte einkehren
In nächster Nähe
50 m Hirschgehege
100 m Schönwert-Märchenwanderweg
6 km Waldthurn: Marktladen mit Bäckerei, Metzgerei
7 km Pleystein: Supermarkt mit Bäckerei, Metzgerei, Getränkemarkt
12 km Vohenstrauß: mehrere Einkaufsmöglichkeiten
14 km: Waidhaus mit Grenzübergang in die Tschechische Republik
Konditionen
Eine Vorauszahlung von 50 % kann nach Buchung berechnet werden. Die Zahlung erfolgt per Überweisung. Stornierungen bis 14 Tage vor Anreise sind kostenfrei, Stornierungen zwischen 14-7 Tagen vor der Anreise werden mit 50% der Gesamtkosten berechnet, Stornierungen in den 7 Tagen vor der Anreise werden mit 100% der Gesamtkosten berechnet.
Erleben Sie Ihren Urlaub in unseren neu erbauten Modulhäusern (Tiny) in Neuenhammer. Im Herzen des Zottbachtals im Oberpfälzer Wald und direkt am Glasschleifer Wanderweg gelegen.
Räumlichkeiten & Ausstattung
46 qm barrierefreie Ferienwohnung mit Terrasse und großer Wiese.
Räumlichkeiten:
1 großes, helles Schlafzimmer mit einem Doppelbett und großzügigem Schrank. Schlafcouch für weitere 2 Personen im Wohnbereich. Bettwäsche wird gestellt. Auf Anfrage stellen wir auch ein Babyreisebett.
Großzügige Wohn-Ess-Küche mit großem Esstisch für 4 Personen, Zugang zur Terrasse mit Blick auf unser Hirschgehege. Kühlschrank, Spülmaschine, Ceranfeld mit 2 Kochstellen, Filterkaffeemaschine, Wasserkocher, Toaster und reichhaltiges Geschirr. Geschirrtücher werden gestellt.
Terrasse ca. 18 qm zum Relaxen. Gartentisch und Stühle sind vorhanden.
Bad mit großzügiger barrierefreier Dusche, Waschbecken und WC. 1 Satz Handtücher wird gestellt.
Ausstattung
Zentrale Flächenheizung über Wärmepumpe
Internetzugang über WLAN (kostenfrei)
Garderobe mit Schuhbank
Unterstellmöglichkeit für Fahrzeuge
Ski- und Schlitten-Unterbringungsraum
Bei Bedarf Kinderhochstuhl und Wäscheständer
Auf Anfrage können Sie in unserer Gaststätte einkehren
In nächster Nähe
50 m Hirschgehege
100 m Schönwert-Märchenwanderweg
6 km Waldthurn: Marktladen mit Bäckerei, Metzgerei
7 km Pleystein: Supermarkt mit Bäckerei, Metzgerei, Getränkemarkt
12 km Vohenstrauß: mehrere Einkaufsmöglichkeiten
14 km: Waidhaus mit Grenzübergang in die Tschechische Republik
Konditionen
Eine Vorauszahlung von 50 % kann nach Buchung berechnet werden. Die Zahlung erfolgt per Überweisung. Stornierungen bis 14 Tage vor Anreise sind kostenfrei, Stornierungen zwischen 14-7 Tagen vor der Anreise werden mit 50% der Gesamtkosten berechnet, Stornierungen in den 7 Tagen vor der Anreise werden mit 100% der Gesamtkosten berechnet.
46 qm barrierefreie Ferienwohnung mit Terrasse und großer Wiese.
DIe Ferienwohnung verfügt über 1 großes, helles Schlafzimmer mit einem Doppelbett und großzügigem Schrank. Schlafcouch für weitere 2 Personen im Wohnbereich. Bettwäsche wird gestellt. Auf Anfrage stellen wir auch ein Babyreisebett. Großzügige Wohn-Ess-Küche mit großem Esstisch für 4 Personen, Kochfeld mit zwei Kochplatten, Zugang zur Terrasse mit Blick auf unser Hirschgehege. Kühlschrank, Spülmaschine, Ceranfeld mit 2 Kochstellen, Filterkaffeemaschine, Wasserkocher, Toaster und reichhaltiges Geschirr. Geschirrtücher werden gestellt. Terrasse ca. 18 qm zum Relaxen. Gartentisch und Stühle sind vorhanden. Bad mit großzügiger barrierefreier Dusche, Waschbecken und WC. 1 Satz Handtücher wird gestellt.
Konditionen
Anreise von 14:00 Uhr bis 20:00 Uhr.
Abreise bis 10:00 Uhr.
Der Check in ist über einen Code möglich, diesen erhalten Sie vorab per Email.
Haustiere sind nicht erlaubt.
Kostenloses Babybett auf Anfrage möglich.
Bereits im Preis inklusive: Handtücher, Bettwäsche, Endreinigung, WLAN, Parkplatz
DIe Ferienwohnung verfügt über 1 großes, helles Schlafzimmer mit einem Doppelbett und großzügigem Schrank. Schlafcouch für weitere 2 Personen im Wohnbereich. Bettwäsche wird gestellt. Auf Anfrage stellen wir auch ein Babyreisebett. Großzügige Wohn-Ess-Küche mit großem Esstisch für 4 Personen, Kochfeld mit zwei Kochplatten, Zugang zur Terrasse mit Blick auf unser Hirschgehege. Kühlschrank, Spülmaschine, Ceranfeld mit 2 Kochstellen, Filterkaffeemaschine, Wasserkocher, Toaster und reichhaltiges Geschirr. Geschirrtücher werden gestellt. Terrasse ca. 18 qm zum Relaxen. Gartentisch und Stühle sind vorhanden. Bad mit großzügiger barrierefreier Dusche, Waschbecken und WC. 1 Satz Handtücher wird gestellt.
Konditionen
Anreise von 14:00 Uhr bis 20:00 Uhr.
Abreise bis 10:00 Uhr.
Der Check in ist über einen Code möglich, diesen erhalten Sie vorab per Email.
Haustiere sind nicht erlaubt.
Kostenloses Babybett auf Anfrage möglich.
Bereits im Preis inklusive: Handtücher, Bettwäsche, Endreinigung, WLAN, Parkplatz
Fasiliteter
-
Aktivitetsfasiliteter
-
Sykkelutleie
-
-
Barnefasiliteter
-
Familievennlig
-
-
Omliggende fasiliteter
-
Garasje
-
PARKERING
-
Sykkelbod
-
-
Overnatting Fasiliteter
-
Internett i fellesområdet
-
Røykfritt hus
-
-
ServiceFacilities
-
Bedding
-
Brødrister
-
Dobbel seng
-
Dusj/toalett
-
Dyr ikke tillatt
-
Håndklær
-
Ikke-røykere
-
Internett - WiFi
-
Kaffemaskin
-
Kjøleskap
-
Oppvaskmaskin
-
Separat kjøkken
-
Terrasse
-
TV
-
WC-Toalett
-
Kort ferie
Det er mulighet for miniferie hele året.
Priser og kalender
Kalender
Varighet
Personer
Pris
Periode
- Ankomst
- Avreise
- Varighet
- 1 uke
Personer
Ingen personer angitt
Merk
Ankomst er ikke valgt.
Der er ikke valgt personer.