Feriehus - 4 personer - 26553 - Dornum

4 personer

Oversikt

Emne nr.: 354-DE-26553-68
7 netter
NOK 10 066,-
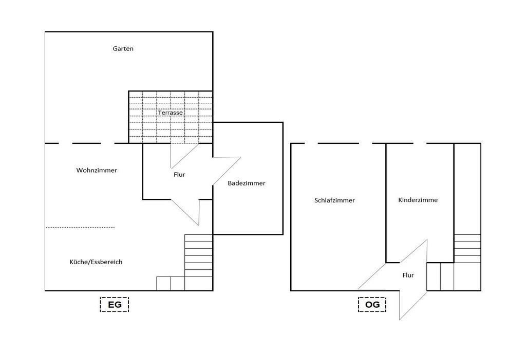
Boligareal 98 m²
Soverom 2
Baderom 1
Internet
Husdyr
  • Tilbud miniferie Ja
  • Avstand innkjøp 5 km
  • Feriehuse for funksjonshemmede Ja
  • Vaskemaskin Ja
  • Tørketrommel Ja
  • Oppvaskmaskin Ja

Beskrivelse

Vi beklager, men beskrivelsen er ikke tilgjengelig på Norsk. Se beskrivelsen i Tysk nedenfor, eller se den maskinoversatte teksten i Norsk.
Ferienwohnung Nordnest

Haus:
Unsere schöne ca. 98 qm große Nichtraucherwohnung auf 2 Etagen befindet sich auf dem 1862 errichteten und im Jahr 2005 liebevoll renoviert denkmalgeschützten Gulfhof Siebelshörn. Durch die Sanierung entstanden hier 12 Wohneinheiten, die teilweise privat oder als Ferienwohnungen genutzt werden. Das Anwesen liegt inmitten eines Vogelschutzgebietes. Umgeben von Feldern, Gärten mit altem Baumbestand im Ortsteil Dornum Nesse, nahe der ostfriesischen Nordseeküste im Deichhinterland. Die Wohnung teilt sich im EG auf in Wohnzimmer, Küche mit Essbereich und 1 großen Bad mit Toilette, Badewanne und Dusche. Über eine Holztreppe gelangt man in die 2 im DG gelegenen Schlafzimmer (1x Doppelbetten, 1x zwei Einzelbetten).

Våre gjesteanmeldelser Eksterne anmeldelser

Ingen gjesteanmeldelser
4,3
11 eksterne anmeldelser
4,5
februar 2025
Generelt:
Vår vistelse på Semesterlägenhet Nordnest var inget mindre än förtjusande! Den rymliga två-rums layouten var perfekt för vår familj på fyra, och den mysiga eldstaden gav en varm känsla under kalla kvällar, Trädgården var en hit med barnen – de älskade att springa runt i det inhägnade området medan vi njöt av en grillfest, Vi uppskattade också det välutrustade köket som gjorde matlagningen till en breeze, Dessutom var de närliggande stränderna bara en kort bilresa bort, vilket gjorde det lätt för oss att njuta av lite sol och kul
4,5
december 2024
Generelt:
Et dejligt ophold alt i alt! Lejligheden var ren og komfortabel, med en hyggelig pejs, der gjorde vores aftener specielle, Vi nød at udforske det lokale område, især Nationalpark Niedersächisches Wattenmeer, som kun var en kort køretur væk
4,0
december 2024
Generelt:
Vi tilbrakte en uke her og elsket det! Området er rolig, og leiligheten er godt vedlikeholdt, Barna likte stranden ved Dornumersiel, som bare var en kort kjøretur unna, Det var en flott familieferie!
4,0
oktober 2024
Generelt:
Tolle Lage in der Nähe des Strandes und der ruhigen Natur, Die Wohnung ist geräumig und sauber, Würde ich auf jeden Fall für Familien empfehlen!
4,5
oktober 2024
Generelt:
Super gezellige appartement! Alles was schoon en had al det, vi havde brug for, Elskede pejsen!
4,5
september 2024
Generelt:
Nordnest is fantastic! The décor was inviting and homely, We appreciated the thoughtful touches, like the cozy blankets by the fireplace, The location is ideal for exploring the surrounding sights, including the Museum Leben am Meer
4,0
september 2024
Generelt:
Ett mycket familjevänligt ställe, Layoutet av lägenheten var perfekt för oss, Vi hade tillräckligt med utrymme för alla, och barnen älskade att leka i trädgården, De närliggande matställena var fantastiska för de kvällar vi inte ville laga mat
4,5
maj 2024
Generelt:
Alt var ret godt! WiFi var lidt langsomt til tider, men ikke et stort problem, Værterne var super venlige og sørgede for, at vi havde alt, hvad vi havde brug for, Køkkenet var veludstyret, og vi fik endda mulighed for at vaske tøj, hvilket var en livredder!
4,0
maj 2024
Generelt:
Clean and practical accommodation, The hosts were friendly and made us feel at home, The proximity to local dining options, like Café Dolce Vita, was convenient, Overall, a pleasant stay
4,0
april 2024
Generelt:
Vi havde en fantastisk tid på Nordnest! Lejligheden var rummelig og perfekt til vores familie på fire, Børnene elskede at lege i den store have, og vi satte pris på det veludstyrede køkken til vores måltider, De nærliggende strande var en bonus for vores sommerferie
4,0
april 2024
Generelt:
Lägenheten var charmig och hade allt vi behövde, Trädgården erbjöd ett bra utrymme för avkoppling, och vi njöt av att grilla på terrassen, Det närliggande slottet Jever var en underbar dagstur!

Fasiliteter

  • Andre

    • Hårføner
    • Jern
    • Oppvarming
    • Parkering (betalende)
    • Strykebrett
    • Tørkeskap
  • Avstand

    • Annen
      6 km
    • Buss stopp
      200 m
    • Doktor
      5 km
    • Ferjeleiet
      5 km
    • Handle
      5 km
    • Restauranter
      5 km
    • Senter
      6 km
    • Togstasjon
      14 km
  • Barn

    • Barneseng
    • Høy stol
    • Leker
    • Trappeport
  • Bygge status

    • Topp beliggenhet
  • Generell informasjon

    • Stue
      98 m²
  • Handicap- Avstander

    • Ledig plass under servant >= 70 cm
  • Hjemmesikkerhet

    • Førstehjelpskasse
  • Kjøkkenartikler

    • Brødrister
    • Egg komfyr
    • Fryser
    • Grill
    • Kaffemaskin
    • Kjøleskap
    • Kokeplate
    • Mikser
    • Oppvaskmaskin
    • Ovn
    • Vannkoker
  • Offentlige rom

    • Plen
  • Parkfasiliteter

    • Førstehjelp
    • Grillsenter
    • Internettilgang
  • Romartikler

    • Brannalarm
    • DVD-spiller
    • Garderobe
    • Garderobehylle
    • Kjøkkenhåndklær
    • Lenestol
    • Sengetøy
    • Sofa
    • Speil
    • Spisebord
    • Stereoanlegg
    • Stikkontaktdeksler
    • Støvsuger
    • TV
  • Rundt huset

    • Hage
    • Hagemøbler
    • Terrasse
  • Rørleggerarbeid / Vask

    • Badekar
    • Dusj
    • Servant
    • Tørketrommel
    • Varmt vann
    • Vaskemaskin
  • Type

    • Feriehus

Kort ferie

Det er mulighet for miniferie hele året.

Priser og kalender

Kalender

Ankomst
Neste måned
   Sjekk tilgjengeligheten på den valgte datoen
Tilgjengelig
Opptatt
   Ankomst mulig
Varighet

Pris

Periode
Ankomst
Avreise
Varighet
1 uke
Personer
Opp til 4 personer

Merk

Ankomst er ikke valgt.
Kontrakts- og leievilkår