Ferieleilighet - 2 personer - Dachsberg - 79875
Alternative emner
I nærheten (10)2 personer
Oversikt
Emne nr.: 305-DE7842.601.1
7 netter
Fra
NOK 6 258,-
Inkl. rengjøring og forsikring
- Tilbud miniferie Ja
- Gode fiskemuligheter Ja
- Vaskemaskin Ja
- Tørketrommel Ja
- Oppvaskmaskin Ja
Beskrivelse
Vi beklager, men beskrivelsen er ikke tilgjengelig på Norsk. Se beskrivelsen i Engelsk nedenfor, eller se den maskinoversatte teksten i Norsk.
Our "Haus am Kreuzbühl" is located in the small community of Dachsberg, surrounded on three sides by a large meadow on a sunny south-facing slope, you can experience pure relaxation and recreation just a few metres away in the nearby forest. The landlords also live in the house and our house with its fantastic panoramic view is situated in the middle of the Southern Black Forest Nature Park on a hill of 930 metres.
- For our welcome little guests we offer an in-house playground with swings, slide, sandpit and a large meadow to romp around, table tennis, bobby car, tractor, scooter and entertainment games, ..... and NEW: our giant trampoline For common use are our sunbathing lawn, which is equipped with 5 deckchairs and parasol, as well as our garden barbecue with garden seating area. In summer, we offer cosy get-together barbecue evenings for our guests once a week on request. - There are plenty of parking spaces around the house and motorbikes can be parked in the carport. - In winter, sledges and toboggans are provided free of charge and snowshoes are available for hire. - . - Your four-legged family member is also very welcome in our house. The popular morning and evening walks for our guests with their four-legged friends, ...... can be started directly from the house. Dog bags are provided free of charge. - Our holiday home is also ideal as accommodation for bikers. Drying rooms and storage facilities are available to provide perfect accommodation for your "machine".
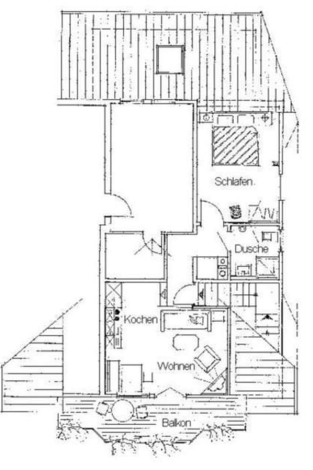
- You can expect a cosy country-style furnished attic holiday flat with 45 sqm on the 1st floor accessible via 1 staircase with cork and tiled floors, covered balcony with table and chairs, separate entrance - 1 bedroom with double bed (180x200), in which an additional cot would be possible as an extra bed. - adjoining bathroom with shower/WC and urinal - a spacious eat-in kitchen with dining area and cosy sitting area, which can be used as a sofa bed (80x180 cm) if required, as well as flat-screen TV and stereo system - a fully equipped kitchenette with dishwasher, cooker with oven, bread machine, microwave, kettle/egg cooker, toaster, waffle iron, coffee machine, Senseo pad machine, blender, etc. - a bathroom with shower/WC and urinal.
- The nearest large town with all the shops for daily needs is St. Blasien, 6 km away. - In the immediate vicinity there are well signposted hiking trails that are also connected to the Black Forest heights, through enchanting forests, as well as open high plateaus. - Winter hiking trails that start directly at the house as well as a toboggan run (approx. 800 m) and a ski lift (approx. 2 km) are in the immediate vicinity. - A very well-developed cross-country ski trail network is approx. 2 km away. - International sled dog races are organised annually in Bernau and Todtmoos, which are both approx. 15 km away. - Alpine skiing is also possible in Bernau and Menzenschwand. - The Feldberg is approx. 35 km away. - In summer you can have fun at the natural bathing lake about 800 metres away and in the surrounding outdoor pools. - The two restaurants in our district are approx. 800 metres away and can be easily reached on foot. Dachsberg, conveniently located in the border triangle of Germany, Switzerland (border approx. 20 km) and France (border approx. 80 km), is the ideal starting point for excursions in the nearer and further surroundings.
---ROLLER SHUTTERS AND SOUNDPROOF WINDOWS SHOULD ENABLE YOU TO REST IN THE NIGHT IN THE BEDROOM LOCATED TO THE STREET--- ---- As a very special service of our house we offer you, on request, a rich and varied breakfast with Black Forest specialities and homemade products in the holiday flat.
Basic information
- Pets allowed: 2
- allowed size of dogs: medium (30 to 60 cm)
- type of apartment: attic
- type of building: Detached house
- Floor on which the object can be found: 1. floor
- Total number of floors in the building above the ground floor: 1
- size of property: 2000 m²
- year of construction: 1900
- Year of the last complete renovation : 2016
- detached house
- Owner lives on the property
- no youth groups
- non-smoking
- meters above sea level: 930
- Number of bedrooms: 1
- Number of bathrooms: 1
Top features
- WiFi
- heating: Everywhere
- balcony
- garden: For communal use
- Total of private car parking spaces: 8
- ? of which garage spaces: None
- ? of which carport spaces: 2
- ? of which private outdoor parking spaces: 8
Sleeping
bedroom 2
- double bed (1.80 m width)
Bathroom
bathroom 2
- shower
Sanitary facilities at the property
- shower
- basin
- toilet
- hair dryer
- daylight
Cooking/Living
- coffee machine: filter coffee machine, coffee machine capsules/pods
- fridge/freezer: freezing compartment, fridge
- stove: stove
- kitchen hood
- oven
- toaster
- microwave
- electric kettle
- dishwasher
- number of dining tables: 1
- number of seats: 4
- number of living rooms: 1
Entertainment
- TV: satellite TV
- music system
- CD player
For children
- playground equipment
- party games for children
Utility
- washing machine: For communal use in the building
- Clothes dryer: For communal use in the building
- iron
- vaccum cleaner
Outside area
- grill/barbecue: Charcoal grill
Surroundings
- Nearest town centre: 500 m
- Grocery store: 6,0 km
- going out: 6,0 km
- restaurant: 800 m
- train station: 14,0 km
- airport: 70,0 km
- motorway: 75,0 km
- distance public transport: 200 m
- lake: 1,0 km
- water sports: 14,0 km
- angling spot: 5,0 km
- public swimming pool: 10 m
- golf course: 25,0 km
- riding facility: 1,0 km
- ski vacation
- distance to ski slope: 2,0 km
- distance to ski school: 2,0 km
- distance to cross-country skiing: 2,0 km
- mountain rail: 35,0 km
Distinctive features
- Suitable for fishing
Type of building: Detached house. size of property: 2000m². year of construction: 1900. Owner lives on the property. no youth groups.
- For our welcome little guests we offer an in-house playground with swings, slide, sandpit and a large meadow to romp around, table tennis, bobby car, tractor, scooter and entertainment games, ..... and NEW: our giant trampoline For common use are our sunbathing lawn, which is equipped with 5 deckchairs and parasol, as well as our garden barbecue with garden seating area. In summer, we offer cosy get-together barbecue evenings for our guests once a week on request. - There are plenty of parking spaces around the house and motorbikes can be parked in the carport. - In winter, sledges and toboggans are provided free of charge and snowshoes are available for hire. - . - Your four-legged family member is also very welcome in our house. The popular morning and evening walks for our guests with their four-legged friends, ...... can be started directly from the house. Dog bags are provided free of charge. - Our holiday home is also ideal as accommodation for bikers. Drying rooms and storage facilities are available to provide perfect accommodation for your "machine".
- You can expect a cosy country-style furnished attic holiday flat with 45 sqm on the 1st floor accessible via 1 staircase with cork and tiled floors, covered balcony with table and chairs, separate entrance - 1 bedroom with double bed (180x200), in which an additional cot would be possible as an extra bed. - adjoining bathroom with shower/WC and urinal - a spacious eat-in kitchen with dining area and cosy sitting area, which can be used as a sofa bed (80x180 cm) if required, as well as flat-screen TV and stereo system - a fully equipped kitchenette with dishwasher, cooker with oven, bread machine, microwave, kettle/egg cooker, toaster, waffle iron, coffee machine, Senseo pad machine, blender, etc. - a bathroom with shower/WC and urinal.
- The nearest large town with all the shops for daily needs is St. Blasien, 6 km away. - In the immediate vicinity there are well signposted hiking trails that are also connected to the Black Forest heights, through enchanting forests, as well as open high plateaus. - Winter hiking trails that start directly at the house as well as a toboggan run (approx. 800 m) and a ski lift (approx. 2 km) are in the immediate vicinity. - A very well-developed cross-country ski trail network is approx. 2 km away. - International sled dog races are organised annually in Bernau and Todtmoos, which are both approx. 15 km away. - Alpine skiing is also possible in Bernau and Menzenschwand. - The Feldberg is approx. 35 km away. - In summer you can have fun at the natural bathing lake about 800 metres away and in the surrounding outdoor pools. - The two restaurants in our district are approx. 800 metres away and can be easily reached on foot. Dachsberg, conveniently located in the border triangle of Germany, Switzerland (border approx. 20 km) and France (border approx. 80 km), is the ideal starting point for excursions in the nearer and further surroundings.
---ROLLER SHUTTERS AND SOUNDPROOF WINDOWS SHOULD ENABLE YOU TO REST IN THE NIGHT IN THE BEDROOM LOCATED TO THE STREET--- ---- As a very special service of our house we offer you, on request, a rich and varied breakfast with Black Forest specialities and homemade products in the holiday flat.
Basic information
- Pets allowed: 2
- allowed size of dogs: medium (30 to 60 cm)
- type of apartment: attic
- type of building: Detached house
- Floor on which the object can be found: 1. floor
- Total number of floors in the building above the ground floor: 1
- size of property: 2000 m²
- year of construction: 1900
- Year of the last complete renovation : 2016
- detached house
- Owner lives on the property
- no youth groups
- non-smoking
- meters above sea level: 930
- Number of bedrooms: 1
- Number of bathrooms: 1
Top features
- WiFi
- heating: Everywhere
- balcony
- garden: For communal use
- Total of private car parking spaces: 8
- ? of which garage spaces: None
- ? of which carport spaces: 2
- ? of which private outdoor parking spaces: 8
Sleeping
bedroom 2
- double bed (1.80 m width)
Bathroom
bathroom 2
- shower
Sanitary facilities at the property
- shower
- basin
- toilet
- hair dryer
- daylight
Cooking/Living
- coffee machine: filter coffee machine, coffee machine capsules/pods
- fridge/freezer: freezing compartment, fridge
- stove: stove
- kitchen hood
- oven
- toaster
- microwave
- electric kettle
- dishwasher
- number of dining tables: 1
- number of seats: 4
- number of living rooms: 1
Entertainment
- TV: satellite TV
- music system
- CD player
For children
- playground equipment
- party games for children
Utility
- washing machine: For communal use in the building
- Clothes dryer: For communal use in the building
- iron
- vaccum cleaner
Outside area
- grill/barbecue: Charcoal grill
Surroundings
- Nearest town centre: 500 m
- Grocery store: 6,0 km
- going out: 6,0 km
- restaurant: 800 m
- train station: 14,0 km
- airport: 70,0 km
- motorway: 75,0 km
- distance public transport: 200 m
- lake: 1,0 km
- water sports: 14,0 km
- angling spot: 5,0 km
- public swimming pool: 10 m
- golf course: 25,0 km
- riding facility: 1,0 km
- ski vacation
- distance to ski slope: 2,0 km
- distance to ski school: 2,0 km
- distance to cross-country skiing: 2,0 km
- mountain rail: 35,0 km
Distinctive features
- Suitable for fishing
Type of building: Detached house. size of property: 2000m². year of construction: 1900. Owner lives on the property. no youth groups.
Våre gjesteanmeldelser Eksterne anmeldelser
Fasiliteter
-
Avstand
-
Golf25 km
-
Innsjø1 km
-
Offentlig transport200 m
-
Senter500 m
-
Ski2 km
-
-
Husinfo
-
Antall baderom1
-
Antall rom3
-
Antall soverom1
-
Balkong
-
Barnesenger1
-
Boligareal45 m²
-
Carport
-
Dsl
-
Dusj
-
Dyr1
-
Fiske
-
Frakoblet
-
Fryser
-
Golf baner
-
Grill
-
Hage
-
Håndklær gratis
-
Ingen grupper
-
Ingen ungdomsgrupper
-
Internet
-
Isdn
-
Kjøleskap
-
Langrenn
-
Mikrowelle
-
Oppvarming
-
Oppvaskmaskin
-
Ovn
-
Parkering dekket
-
Ridning
-
Røyking forbudt
-
Sengetøy gratis
-
Sertifisert fiske
-
Skiområde
-
Tørketrommel
-
Vaskemaskin
-
Wlan
-
Kort ferie
Det er begrenset mulighet for miniferie hele året, typisk utenfor høysesongen.
Priser og kalender
Kalender
Varighet
Pris
Periode
- Ankomst
- Avreise
- Varighet
- 1 uke
Personer
Opp til 2 personer
Merk
Ankomst er ikke valgt.