Ferieleilighet - 5 personer - Wördeholzer Straße - 31855 - Aerzen
Alternative emner
I nærheten (3)5 personer
Oversikt
Emne nr.: 530-900198
7 netter
Fra
NOK 10 106,-
- Tilbud miniferie Ja
- Vaskemaskin Ja
- Tørketrommel Ja
- Oppvaskmaskin Ja
Beskrivelse
Vi beklager, men beskrivelsen er ikke tilgjengelig på Norsk. Se beskrivelsen i Tysk nedenfor, eller se den maskinoversatte teksten i Norsk.
LiFarm.de, Fewo EG
Die LiFarm – Urlaub in und mit der Natur
Die LiFarm, ein liebevoll restauriertes Fachwerkhaus von 1888, lädt seit 2024 Gäste in drei moderne, vollständig eingerichtete Ferienwohnungen ein. Das großzügige Grundstück mit knapp 6000qm und eine nahegelegene Streuobstwiese (knapp 2h) bieten Ihnen inmitten der idyllischen Landschaft des Weserberglandes Ruhe und zahlreiche Freizeitmöglichkeiten. Die atemberaubende Aussicht, die Sie sowohl vom Gelände als auch aus den Apartments genießen, ist bei jedem Wetter ein Highlight.
Ihre Ferienwohnung liegt strategisch günstig zwischen den Städten Hameln, Hessisch Oldendorf und Aerzen, die jede für sich einen Besuch wert ist. Hameln, berühmt durch die Legende des Rattenfängers, begeistert ganzjährig mit seiner historischen Altstadt und dem malerischen Weihnachtsmarkt. Auch Hessisch Oldendorf und Aerzen bieten reizvolle Ausflugsziele. Zudem führt der Weserradwanderweg entlang der Weser und ermöglicht es, Sightseeing und sportliche Aktivitäten auf angenehme Weise zu verbinden. Nur 3 km entfernt liegt der Hamelner Golfplatz am Schloss Schwöbber, und im Sommer lockt das Waldbad Halvestorf, das etwa 4 km entfernt ist.
Doch nicht nur die Natur lockt, auch die nahe gelegene Metropole Hameln bietet kulturelle Höhepunkte. Neben dem Rattenfänger ist die Stadt bekannt für ihre zahlreichen Sehenswürdigkeiten, Veranstaltungen und Geschäfte. Zudem liegt die niedersächsische Landeshauptstadt Hannover mit ihren internationalen Messen in erreichbarer Nähe. Hier kann man nach einem anstrengenden Messetag abends in der Natur der LiFarm entspannen und den Tag fernab der Hotelbars ausklingen lassen.
Die LiFarm bietet Ihnen somit die perfekte Kombination aus Natur, Kultur und Erholung – ideal für Familien, Paare und auch Geschäftsreisende, die nach einem ereignisreichen Tag in die Ruhe der Natur zurückkehren möchten.
LiFarm Vorteile:
• keine Kurtaxe oder Bettensteuer
• freie Parkplätze direkt vor dem Haus
• wunderschöner Ausblick in alle Himmelsrichtungen
• saisonal frisches Obst direkt vom Baum von unserer nahen Streuobstwiese Obstplus.de
• Honig oder Saft aus dem eigenen Hofladen auf der LiFarm
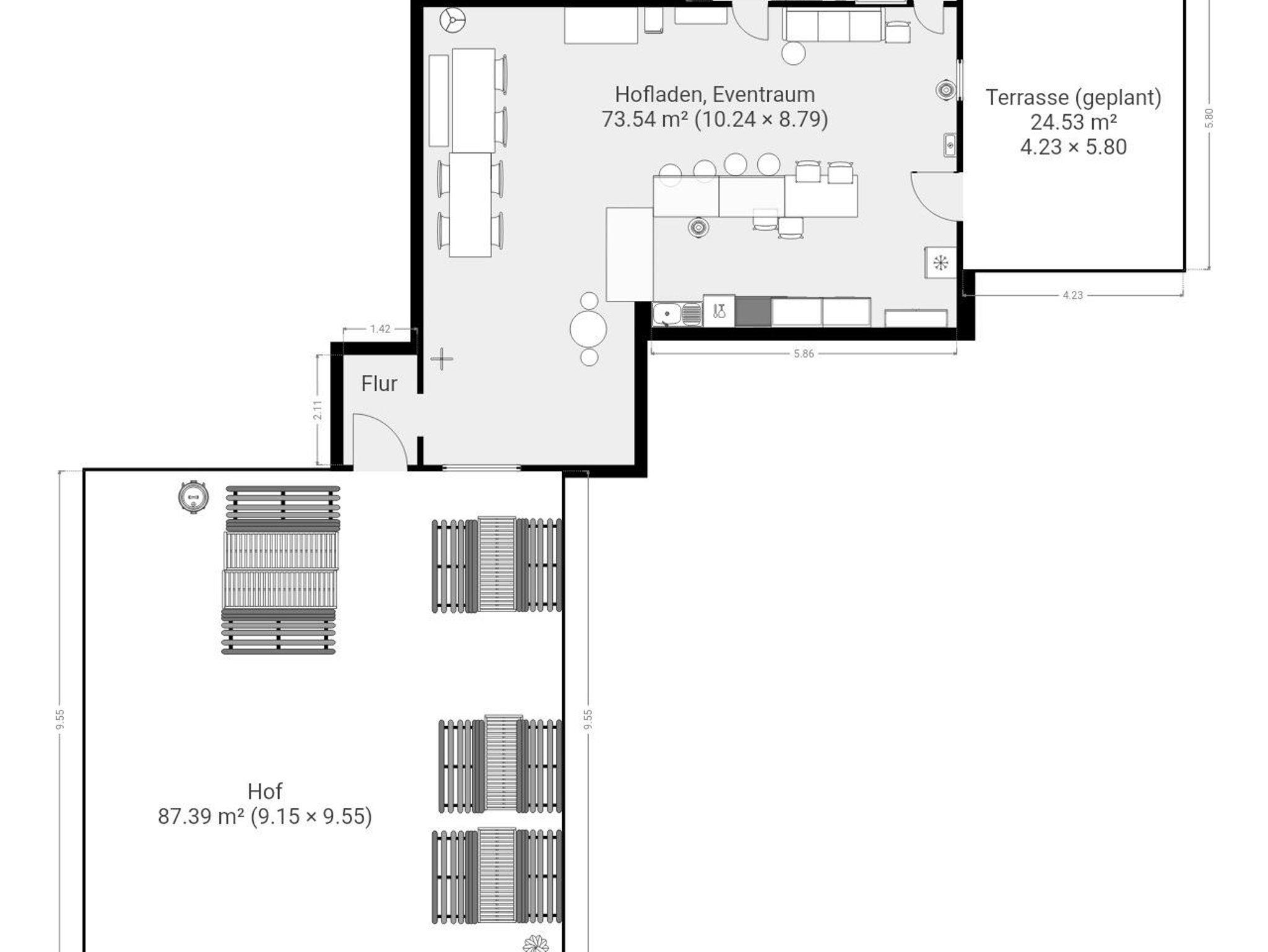
• Hofladen kann auch als Eventraum genutzt (gemietet) werden
• komplett eingerichtete und gemütliche Ferienwohnungen
Die LiFarm, ein liebevoll restauriertes Fachwerkhaus von 1888, lädt seit 2024 Gäste in drei moderne, vollständig eingerichtete Ferienwohnungen ein. Das großzügige Grundstück mit knapp 6000qm und eine nahegelegene Streuobstwiese (knapp 2h) bieten Ihnen inmitten der idyllischen Landschaft des Weserberglandes Ruhe und zahlreiche Freizeitmöglichkeiten. Die atemberaubende Aussicht, die Sie sowohl vom Gelände als auch aus den Apartments genießen, ist bei jedem Wetter ein Highlight.
Ihre Ferienwohnung liegt strategisch günstig zwischen den Städten Hameln, Hessisch Oldendorf und Aerzen, die jede für sich einen Besuch wert ist. Hameln, berühmt durch die Legende des Rattenfängers, begeistert ganzjährig mit seiner historischen Altstadt und dem malerischen Weihnachtsmarkt. Auch Hessisch Oldendorf und Aerzen bieten reizvolle Ausflugsziele. Zudem führt der Weserradwanderweg entlang der Weser und ermöglicht es, Sightseeing und sportliche Aktivitäten auf angenehme Weise zu verbinden. Nur 3 km entfernt liegt der Hamelner Golfplatz am Schloss Schwöbber, und im Sommer lockt das Waldbad Halvestorf, das etwa 4 km entfernt ist.
Doch nicht nur die Natur lockt, auch die nahe gelegene Metropole Hameln bietet kulturelle Höhepunkte. Neben dem Rattenfänger ist die Stadt bekannt für ihre zahlreichen Sehenswürdigkeiten, Veranstaltungen und Geschäfte. Zudem liegt die niedersächsische Landeshauptstadt Hannover mit ihren internationalen Messen in erreichbarer Nähe. Hier kann man nach einem anstrengenden Messetag abends in der Natur der LiFarm entspannen und den Tag fernab der Hotelbars ausklingen lassen.
Die LiFarm bietet Ihnen somit die perfekte Kombination aus Natur, Kultur und Erholung – ideal für Familien, Paare und auch Geschäftsreisende, die nach einem ereignisreichen Tag in die Ruhe der Natur zurückkehren möchten.
LiFarm Vorteile:
• keine Kurtaxe oder Bettensteuer
• freie Parkplätze direkt vor dem Haus
• wunderschöner Ausblick in alle Himmelsrichtungen
• saisonal frisches Obst direkt vom Baum von unserer nahen Streuobstwiese Obstplus.de
• Honig oder Saft aus dem eigenen Hofladen auf der LiFarm
• Hofladen kann auch als Eventraum genutzt (gemietet) werden
• komplett eingerichtete und gemütliche Ferienwohnungen
Unsere Ferienwohnung im Erdgeschoss. Die größte der drei Wohnungen (90qm). Ein großzügiges Wohnzimmer (Ausziehsofa) und zwei Schlafzimmer (Elternschlafzimmer mit großem Doppelbett und ein Kinderschlafzimmer mit einem Einzelbett und einem Ausziehsofa) bieten bis zu 5 erwachsenen Personen ausreichend Platz für einen erholsamen Urlaub. Gemütlich kann man den Abend mit der ganzen Familie vor dem 55 Zoll großen TV ausklingen lassen.
Ein großes Bad ist um die Möglichkeit erweitert Ihre Wäsche zu waschen und zu trocknen. Waschmaschine und Trockner befinden sich in der Wohnung und müssen nicht mit anderen Gästen geteilt werden.
Die vollausgestatte moderne Küche (Induktionskochfeld, Ofen, Geschirrspüler, Microwelle, Kühlschrank mit Gefrierfach, etc.) ist groß genug, um mit der Familie nicht nur Essen zuzubereiten, sondern auch gemütlich zu speisen.
Die hochwertige Ausstattung beginnt schon bei den Bodenbelägen Echtholzparket Eiche Katura in allen Wohnräumen und hochwertigen Fliesen in allen anderen Bereichen.
Eine Terrasse und die Nutzung des Gartens runden die Möglichkeiten ab. Je nach Saison darf auf der fußläufig (ca. 500m) zu erreichenden Streuobstwiese (www.obstplus.de) gerne selbst Obst gepflückt werden.
Haustiere sind nach Rücksprache erlaubt.
Über Parkmöglichkeiten brauchen Sie sich bei uns keine Gedanken zu machen, jede Ferienwohnung verfügt über einen eigenen Stellplatz auf dem Hof in direkter Nähe zum Hauseingang.
WLAN steht kostenfrei zur Verfügung.
Ein großes Bad ist um die Möglichkeit erweitert Ihre Wäsche zu waschen und zu trocknen. Waschmaschine und Trockner befinden sich in der Wohnung und müssen nicht mit anderen Gästen geteilt werden.
Die vollausgestatte moderne Küche (Induktionskochfeld, Ofen, Geschirrspüler, Microwelle, Kühlschrank mit Gefrierfach, etc.) ist groß genug, um mit der Familie nicht nur Essen zuzubereiten, sondern auch gemütlich zu speisen.
Die hochwertige Ausstattung beginnt schon bei den Bodenbelägen Echtholzparket Eiche Katura in allen Wohnräumen und hochwertigen Fliesen in allen anderen Bereichen.
Eine Terrasse und die Nutzung des Gartens runden die Möglichkeiten ab. Je nach Saison darf auf der fußläufig (ca. 500m) zu erreichenden Streuobstwiese (www.obstplus.de) gerne selbst Obst gepflückt werden.
Haustiere sind nach Rücksprache erlaubt.
Über Parkmöglichkeiten brauchen Sie sich bei uns keine Gedanken zu machen, jede Ferienwohnung verfügt über einen eigenen Stellplatz auf dem Hof in direkter Nähe zum Hauseingang.
WLAN steht kostenfrei zur Verfügung.
Våre gjesteanmeldelser Eksterne anmeldelser
Fasiliteter
-
Aktivitetsfasiliteter
-
Å sykle
-
-
Barnefasiliteter
-
Familievennlig
-
Lekeplats
-
-
Grunnleggende fasiliteter
-
Størrelse90 m²
-
-
Mat fasiliteter
-
Produkter fra egen produksjon
-
-
Omliggende fasiliteter
-
Hage til bruk
-
PARKERING
-
-
Overnatting Fasiliteter
-
BBQ anlegg
-
Internett i fellesområdet
-
Kredittkort
-
Røykfritt hus
-
Sykkelvennlig
-
Turvennlig
-
-
ServiceFacilities
-
Avtrekksvifte
-
Balkong
-
Bedding
-
Bod
-
Brødrister
-
Dusj
-
Dusj/toalett
-
DvD-Player
-
Dyr på forespørsel
-
Dårlig/WC
-
Eisen
-
Flere soverom
-
Husdyr tillatt eller på forespørsel
-
Høy stol
-
Håndklær
-
Hårføner
-
Ikke-røykere
-
Internett - WiFi
-
Kaffemaskin
-
Kjøleskap
-
Komfur
-
Mikrobølgeovn
-
Mulighet for frysing
-
OPPVARMING
-
Oppvaskmaskin
-
Ovn
-
På bakken
-
Radio
-
Rennende vann
-
Røykvarsler
-
Separat kjøkken
-
Separat oppholdsrom
-
Sittegruppe
-
Skrivebord
-
Stue
-
Såpe
-
Terrasse
-
Toalettpapir
-
TV
-
Tørketrommel
-
Varmtvannsbereder
-
Vaskemaskin
-
Kort ferie
Det er mulighet for miniferie hele året.
Priser og kalender
Kalender
Varighet
Pris
Periode
- Ankomst
- Avreise
- Varighet
- 1 uke
Personer
Opp til 5 personer
Merk
Ankomst er ikke valgt.