Ferieleilighet - 5 personer - Trogir/Arbanija - 21224
Alternative emner
I nærheten (62)5 personer
Oversikt
Emne nr.: 310-HR4904.603.1
7 netter
Fra
NOK 6 820,-
Inkl. rengjøring og forsikring
- Tilbud miniferie Ja
- Klimaanlegg Ja
- Vaskemaskin Ja
- Oppvaskmaskin Ja
Beskrivelse
Vi beklager, men beskrivelsen er ikke tilgjengelig på Norsk. Se beskrivelsen i Engelsk nedenfor, eller se den maskinoversatte teksten i Norsk.
The Meri holiday apartment is just 20 metres from the beach in the harmonious little holiday village of Arbanija with 500 inhabitants, on the north side of the island of Ciovo.
There is an extra large balcony with a wonderful sea view, for relaxing, as well as a veranda.
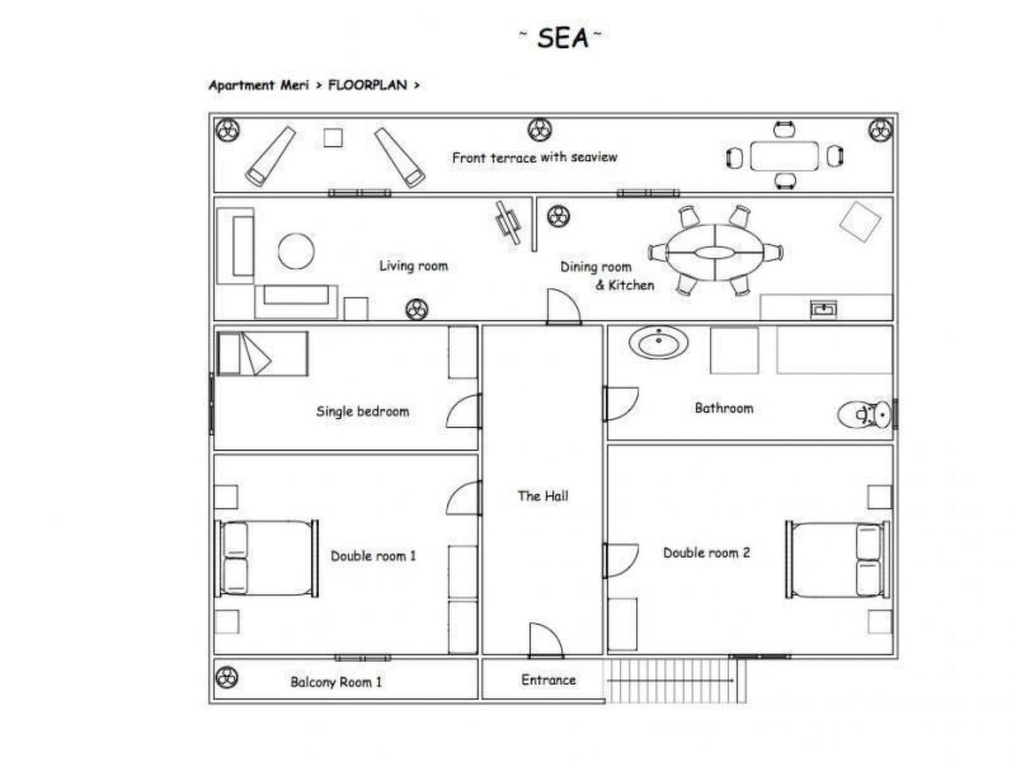
The apartment of 120m2 is spacious and very light and was recently completely renovated. It can accommodate up to six people in total. The apartment is fully-equipped and has modern furnishing, air conditioning, an LCD TV with satellite channels and wireless Internet access. There are three bedrooms, of which two each have a double bed, while the third has a single bed. The big kitchen provides a fridge, stove, microwave, toaster and kettle. There is also a spacious living room. There is also a bathroom with a bath.
The town centre of Trogir is 4km away and the nearest airport (Split-Resnik) is about 12km away. The apartment is to the south-west of Trogir and Mastrinka on Ciovo, and to the north-east of Slatine. The Arbanija region is known for its beautiful beaches, its forested coasts and many little bays. The nearest motorway access (Prgomet) is 25km away.
Basic information
- Pets allowed: none
- Type of property: holiday apartment
- is located in: Residence
- type of building: terraced house
- Floor on which the object can be found: 2. floor
- Total number of floors in the building above the ground floor: 2
- Year of the last complete renovation : 2016
- Owner lives on the property
- no group bookings
- non-smoking
- meters above sea level: 5
- Number of bedrooms: 3
- Number of bathrooms: 1
Top features
- WiFi
- air conditioning: In part
- balcony
- terrace
- garden: For communal use
- Total of private car parking spaces: 1
- ? of which garage spaces: None
- ? of which carport spaces: None
- ? of which private outdoor parking spaces: 1
- distance to free communal parking spaces: 20 m
Sleeping
bedroom 2
- double bed (1.80 m width)
- child's bed/ baby's cot
bedroom 4
- double bed (1.80 m width)
bedroom 6
- single bed
Bathroom
bathroom 2
- bath tub
- basin
- toilet
Cooking/Living
- coffee machine: coffee machine
- fridge/freezer: freezing compartment, fridge
- stove: gas hob, stove
- oven
- toaster
- microwave
- electric kettle
- dishwasher
- dishtowels
- number of dining tables: 1
- number of seats: 6
- number of living rooms: 1
Entertainment
- TV: TV, satellite TV
- smart tv
- radio
For children
- high chair
Utility
- washing machine: For sole use in the object
- clothes drying rack
- iron
- vaccum cleaner
- cleaning products
- fan: 2
- ceiling fan
Sustainability
- Waste recycling
- Bio garbage available
- plastic recycling available
Outside area
- grill/barbecue: grill/barbecue
- outside shower
Surroundings
- view: sea/lake
- Nearest town centre: 4,0 km
- Grocery store: 150 m
- restaurant: 100 m
- airport: 11,0 km
- distance public transport: 200 m
- beach: 15 m
- concrete beach: 20 m
- water (sea, lake, etc.): 20 m
- sea: 20 m
- water sports: 50 m
Type of building: terraced house.
There is an extra large balcony with a wonderful sea view, for relaxing, as well as a veranda.
The apartment of 120m2 is spacious and very light and was recently completely renovated. It can accommodate up to six people in total. The apartment is fully-equipped and has modern furnishing, air conditioning, an LCD TV with satellite channels and wireless Internet access. There are three bedrooms, of which two each have a double bed, while the third has a single bed. The big kitchen provides a fridge, stove, microwave, toaster and kettle. There is also a spacious living room. There is also a bathroom with a bath.
The town centre of Trogir is 4km away and the nearest airport (Split-Resnik) is about 12km away. The apartment is to the south-west of Trogir and Mastrinka on Ciovo, and to the north-east of Slatine. The Arbanija region is known for its beautiful beaches, its forested coasts and many little bays. The nearest motorway access (Prgomet) is 25km away.
Basic information
- Pets allowed: none
- Type of property: holiday apartment
- is located in: Residence
- type of building: terraced house
- Floor on which the object can be found: 2. floor
- Total number of floors in the building above the ground floor: 2
- Year of the last complete renovation : 2016
- Owner lives on the property
- no group bookings
- non-smoking
- meters above sea level: 5
- Number of bedrooms: 3
- Number of bathrooms: 1
Top features
- WiFi
- air conditioning: In part
- balcony
- terrace
- garden: For communal use
- Total of private car parking spaces: 1
- ? of which garage spaces: None
- ? of which carport spaces: None
- ? of which private outdoor parking spaces: 1
- distance to free communal parking spaces: 20 m
Sleeping
bedroom 2
- double bed (1.80 m width)
- child's bed/ baby's cot
bedroom 4
- double bed (1.80 m width)
bedroom 6
- single bed
Bathroom
bathroom 2
- bath tub
- basin
- toilet
Cooking/Living
- coffee machine: coffee machine
- fridge/freezer: freezing compartment, fridge
- stove: gas hob, stove
- oven
- toaster
- microwave
- electric kettle
- dishwasher
- dishtowels
- number of dining tables: 1
- number of seats: 6
- number of living rooms: 1
Entertainment
- TV: TV, satellite TV
- smart tv
- radio
For children
- high chair
Utility
- washing machine: For sole use in the object
- clothes drying rack
- iron
- vaccum cleaner
- cleaning products
- fan: 2
- ceiling fan
Sustainability
- Waste recycling
- Bio garbage available
- plastic recycling available
Outside area
- grill/barbecue: grill/barbecue
- outside shower
Surroundings
- view: sea/lake
- Nearest town centre: 4,0 km
- Grocery store: 150 m
- restaurant: 100 m
- airport: 11,0 km
- distance public transport: 200 m
- beach: 15 m
- concrete beach: 20 m
- water (sea, lake, etc.): 20 m
- sea: 20 m
- water sports: 50 m
Type of building: terraced house.
Våre gjesteanmeldelser Eksterne anmeldelser
Fasiliteter
-
Avstand
-
Airport SPU9,6 km
-
Hav20 m
-
Offentlig transport200 m
-
Senter4 km
-
Vann20 m
-
-
Husinfo
-
Antall baderom1
-
Antall rom4
-
Antall soverom3
-
Balkong
-
Bolig
-
Boligareal90 m²
-
Dsl
-
Fryser
-
Grill
-
Hage
-
Håndklær gratis
-
Ingen kjæledyr tillatt
-
Internet
-
Isdn
-
Kjøleskap
-
Klimaanlegg
-
Mikrowelle
-
Oppvaskmaskin
-
Ovn
-
Parkering dekket
-
Røyking forbudt
-
Sengetøy gratis
-
Terrasse
-
TV
-
Tv internasjonale
-
Vaskemaskin
-
Wlan
-
Kort ferie
Det er begrenset mulighet for miniferie hele året, typisk utenfor høysesongen.
Priser og kalender
Kalender
Varighet
Pris
Periode
- Ankomst
- Avreise
- Varighet
- 1 uke
Personer
Opp til 5 personer
Merk
Ankomst er ikke valgt.