Feriehus - 8 personer - Poppelvej - Kollerup - 9690 - Fjerritslev

8 personer

Oversikt

Emne nr.: 049-JB242
7 netter
Fra NOK 5 250,-
Inkl. rengjøring og forsikring
8 personer
Grunnareal 801 m²
Boligareal 96 m²
Soverom 3
Baderom 1
Avstand hav/fjord 4 km
Highspeed internet Highspeed
Ikke-røyker
Husdyr 2
  • Tilbud miniferie Ja
  • Avstand innkjøp 2 100 m
  • Spa Ja
  • Badstue Ja
  • Parabol/Kabel-TV Ja
  • Vedovn Ja
  • Vaskemaskin Ja
  • Tørketrommel Ja
  • Oppvaskmaskin Ja
  • Ladestasjon for elbil Ja
  • Energivennlig Ja

Beskrivelse

Vi beklager, men beskrivelsen er ikke tilgjengelig på Norsk. Se beskrivelsen i Tysk nedenfor, eller se den maskinoversatte teksten i Norsk.

Gemütliches Ferienhaus mit schönen Terrassen und herrlicher Umgebung
Dieses Ferienhaus auf Poppelvej 8 in Kollerup ist perfekt für alle, die Ruhe, Entspannung und Naturerlebnisse in unmittelbarer Nähe suchen. Das Haus liegt ungestört am Ende einer ruhigen Stichstraße, wo du die Stille und Gelassenheit inmitten der schönen Natur mit dem angrenzenden Wald genießen kannst.

Willkommen in deinem Ferienhaus
Im Inneren des Ferienhauses empfängt dich eine helle und freundliche Atmosphäre. Das Haus ist mit einem geräumigen Wohnzimmer ausgestattet, in dem die großen Fenster viel Licht hereinlassen und eine wunderbare Verbindung zwischen Innen und Außen schaffen. Hier kannst du dich mit deinen Liebsten um den Kaminofen versammeln, der an kühlen Tagen Wärme und Gemütlichkeit verbreitet, während die offene Küche den sozialen Austausch erleichtert, auch während des Kochens. Das große Badezimmer verfügt über ein schönes Whirlpool und eine Sauna, die nach einem langen Tag voller Outdoor-Erlebnisse für Entspannung sorgen. Mit drei Schlafzimmern bietet das Haus genügend Platz für die ganze Familie, und es gibt auch ein zusätzliches Gästetoilette für noch mehr Komfort.

Genieße das Leben im Freien
Draußen kannst du dich auf die Sommerzeit auf den Terrassen freuen, die auf beiden Seiten des Hauses zu finden sind. Es gibt immer einen sonnigen Platz, und wenn die Sonne zu hoch steht, auch schattige Ecken. Mit Blick auf die umliegenden Bäume und den ruhigen Garten kannst du in die Natur eintauchen und den Alltag völlig hinter dir lassen. Wenn es Zeit fürs Abendessen ist, kannst du natürlich auch den Grill anwerfen und die Mahlzeiten an den langen, hellen Sommerabenden im Freien genießen.

Entdecke deine Umgebung
Das Ferienhaus ist perfekt gelegen für alle, die Entspannung mit aktiven Ausflügen kombinieren möchten. Der Kollerup Plantage liegt direkt vor der Tür und lädt zu schönen Spaziergängen und Radtouren ein. In der Umgebung gibt es gute Fahrradwege, die es einfach machen, die Natur und die nahegelegenen Strände zu erkunden. Die beliebte Nordsee ist nur eine kurze Autofahrt entfernt, wo du ein erfrischendes Bad nehmen oder lange Spaziergänge am Strand machen kannst. Die Stadt Fjerritslev ist ebenfalls nicht weit entfernt, wenn du einkaufen oder in einem der lokalen Restaurants essen gehen möchtest.

Denken Sie daran, dass Sie bei uns in Jammerbugt immer Bollerwagen, Kinderstühle und Kinderbetten ausleihen können. Sie können diese direkt im Büro abholen und nach Ihrem Urlaub wieder zurückbringen.


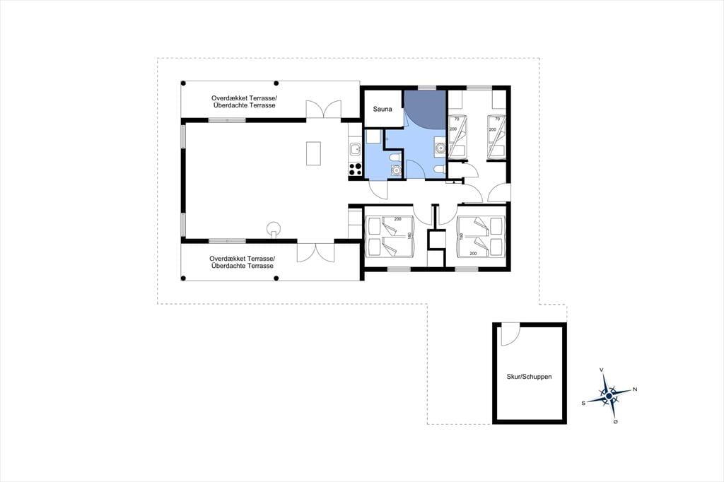
Raumaufteilung

  • Schlafzimmer
    • Doppelbett - 180x200
  • Schlafzimmer
    • Doppelbett - 180x200
  • Schlafzimmer
    • Etagenbett - 70x200
    • Etagenbett - 70x200

Våre gjesteanmeldelser Eksterne anmeldelser

5,0
Basert på 1 vurdering
Anmeldelse fra 23.04.2025
5
(1)
4
(0)
3
(0)
2
(0)
1
(0)
Kommentarer
Ingen vurderinger har kommentarer.

Fasiliteter

  • Hus Info

    • 2 x Toalett
    • Antall husdyr
      2
    • Antall voksne
      8
    • Badstue
    • Byggeår
      2004
    • Dusj
    • Grunnflate / Naturtomt
      801 m²
    • Husareal
      96 m²
    • Innendørs badestamp
  • Avstand

    • Avstand fjord
      12 km
    • Avstand golfbane
      1,5 km
    • Avstand innkjøp / helårsbutikk
      2,1 km
    • Avstand restaurant
      2,1 km
    • Avstand strand / sand-/steinstrand
      4 km
  • Energi / Oppvarming

    • Elektrisk oppvarming
    • Solenergi
    • Vedovn
  • Harde hvite varer

    • Kaffetrakter
    • Kjøleskap med fryser
    • Mikroovn
    • Oppvaskmaskin
    • Panser
    • Plater
    • Stekeovn
    • Strykebrett
    • Strykejern
    • Tørketrommel
    • Vannkoker
    • Vaskemaskin
  • Multimedia

    • Dansk tv
    • Gratis Wi -Fi - Omtrent 100 Mbit
    • Kabel-TV
    • Norsk tv
    • Svensk tv
    • TV
      Streaming via AppleTV
    • Tysk tv
  • Ekstra

    • Barnestol
    • Golf Ferie
    • Vandre vennlig
  • Utenfor

    • Grill
    • Hagemøbler
    • Parasoll
      1
    • Parkering på tomten
    • Solsenger
      2
    • Terrasse
    • Utendørs dusj
      Bare kaldt vann
  • Diverse

    • 2 x gulvvarme
    • Merkede turstier i nærheten
  • Regler

    • Husdyr: Alle kjæledyr er tillatt
    • Lading av elbil tillatt / CEE-kontakt med 16 ampere tilgjengelig, ta med kabel
    • Røyking er ikke tillatt
  • Pris inkludert

    • Sluttrengjøring inkl.

Kort ferie

Det er begrenset mulighet for miniferie hele året, typisk utenfor høysesongen.

Priser og kalender

Kalender

Ankomst
Forrige måned Neste måned
   Sjekk tilgjengeligheten på den valgte datoen
Tilgjengelig
Opptatt
   Ankomst mulig
Varighet
Personer

Pris

Periode
Ankomst
Avreise
Varighet
1 uke
Personer
Ingen personer angitt

Merk

Ankomst er ikke valgt.
Der er ikke valgt personer.
Kontrakts- og leievilkår